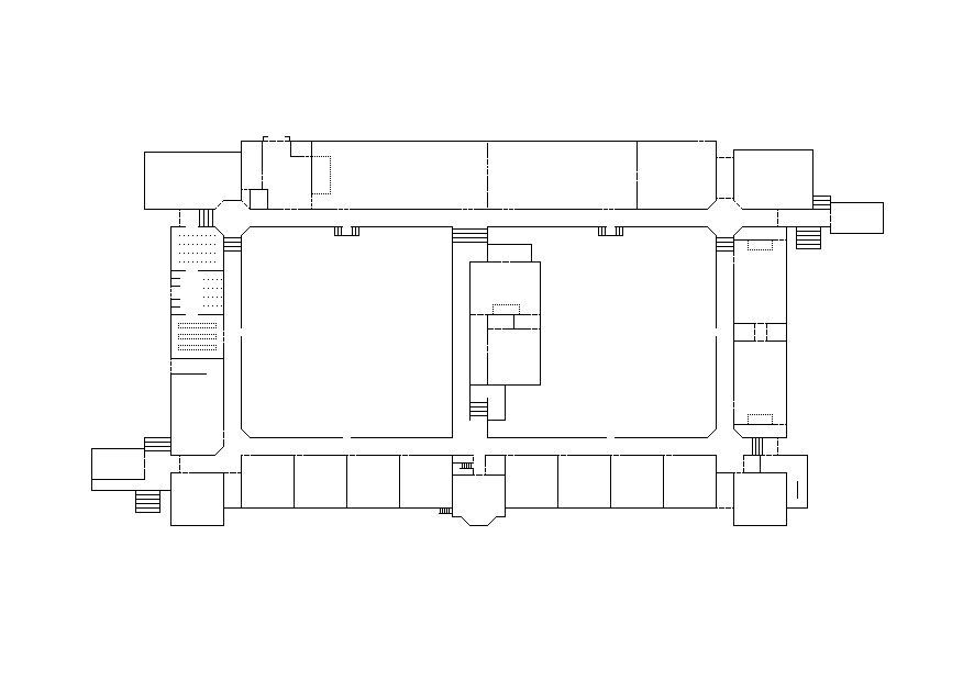
THERE have been some queries on the one of the Forums about the school buildings and their evolution. To inform this discussion and provide a starting point from which other younger members may be able to move forward I have generated a plan view of the main brick built buildings as I remember them from the 1940's. I cannot guarantee that they are correct in every detail or that the scaling is exact - it isn't. Topologically it is quite accurate.

Starting from this plan view those with a good visual memory and some graphical ability should be able to generate sketches or scale drawing that can be added to this page. The plan shows the school as I knew it in the years 1944 to 1950. No building work was possible during the war (disregarding the air-raid shelters) nor was anything done for several years due to the post-war shortages of building materials and skilled labour. Apart from a temporary prefab erected at the North East corner by the Art Room of the time nothing substantive was erected until long after I left school. So the plan shown can be taken to be representative of the decade 1940-50.
When the school was opened in 1930, the school was smaller than that shown. In particular classrooms 2 and 11 with its adjoining changing room had not been built nor had the upper floor biology lab and advanced chemistry lab been built on top of the Gym. [The plan shows the upper floor - the gym was below on the ground floor under both labs]. The absence of Rooms 2 and 11 can be seen in the photo shown in the prospectus and the labs above the gym are visibly missing above the roof-line.
The prefects' room was the room with the balcony above the staff room, accessed via the narrow stairs by the staff room. This room was also used for sixth-form tutorials. The boiler room was below the staff room with access from outside the school and from a door adjacent to the staff room down a narrow stairway. The boiler room was out of bounds but was used by staff and prefects as a short cut to the playing field during games periods. The Art Room was located on the north aspect of the school to take advantage of the north light.
There was a heavy folding partition between the assembly hall and dining hall with an integral small door built into it. For large functions such as Speech Day the partition was folded to the wall to create a very long auditorium with the audience facing the platform above which were fixed the Honour Boards, shields and other trophies - pride of place being given to the Edgar Povey Trophy. For School plays the partition was folded to the wall to form the the proscenium arch with a temporary stage built immediately behind it in the dining room. The audience in the assembly hall then faced the proscenium. The sectional staging and other scenery was stored in a large wooden shed near the back exit to Ham Lane.
When more information comes to my notice this page will be developed further. If you wish to sketch later extensions and changes to the building plan you may find it convenient to print a copy of this unannotated plan.
LCGSB Plan
